Herzstück
Nach über einem halben Jahrhundert Schulbetrieb war die Wilhelm-Arnoul-Schule in Mörfelden-Walldorf, eine 35’000 Einwohner grosse Stadt im Hessischen Landkreis Groß-Gerau, an ihre Kapazitätsgrenzen gestossen. Auch die sozialen, energetischen und pädagogischen Anforderungen, die an eine moderne Grundschule gestellt werden, konnte die Wilhelm-Arnoul-Schule nicht mehr vollumfänglich erfüllen.
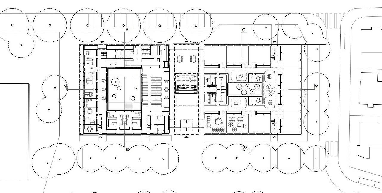
Das bestehende Gebäude aus dem Jahr 1962 (links), in dem Verwaltung, Mensa, Küche und die Aufenthaltsräume für das Lehrpersonal untergebracht sind, wurde umgebaut und umfassend saniert. Platz für zusätzliche Unterrichtsräume schafft der doppelstöckige Erweiterungsbau (rechts), der als materialsparender Holzrahmenbau erstellt wurde. Das neue Herzstück der Wilhelm-Arnoul-Schule ist die mittige Eingangshalle mit zweigeschossiger Aula sowie Spiel-, Lese- und Aufenthaltsbereichen. Trotz verschiedener Materialien bilden die drei Gebäudeteile eine kompakte und funktional schlüssige Einheit, die sich gut in die Nachbarschaft einbettet.
Ort der Begegnung
Dank der grossen Spannweite von fast neun Metern lassen die Flächenelemente von LIGNATUR den Eingangsbereich des Foyers zu einem Ort der Begegnung werden, der durch die Sitztreppe zusätzlich gefördert wird. Dass Holz auch bei den Wänden und Böden das dominierende Element ist, verleiht den Innenräumen eine warme Optik und eine angenehme Haptik.
Wie in jeder Schule wird es in der Wilhelm-Arnoul-Schule gerne etwas lauter, auch auf den Gängen. Damit die Geräusche möglichst gut absorbiert werden und der Schulbetrieb ungestört stattfinden kann, sind die LIGNATUR-Flächenelemente mit dem leistungsfähigen Akustiktyp 3.1 versehen. Die Trenndecken zwischen den Unterrichtsräumen sorgen mit den integrierten Tieftontilger "silence12" für einen hohen Ruhepegel und dämmen störende Gehgeräusche gezielt ein.
In den Klassenräumen überspannt das Deckenelement, mit 360 mm statisch tragender Höhe, Spannweiten bis zu 7,90 Meter. Insgesamt wurden an der Wilhelm-Arnoul-Schule 2`930 Quadratmeter LIGNATUR-Flächenelemente verbaut, fast die Hälfte eines Fussballfeldes. Für eine möglichst natürliche Ästhetik sind die Flächenelemente – mit Ausnahme eines UV-Schutzes – unbehandelt.
Jahrgangscluster
Die Klassenräume im Neubau sind in Jahrgangsclustern angeordnet, die jeweils fünf Klassen umfassen. Jeder Cluster verfügt über einen eigenen Eingang, eigene WCs und Garderoben, eine Küche, einen Lehrerstützpunkt sowie einen zentral angeordneten Multifunktionsbereich. Das Konzept sieht offene Türen und Sichtbezüge zwischen den verschiedenen Bereichen vor, was die integrierte Akustikbearbeitung umso wichtiger macht. Für zusätzliche verbesserte Raumakustik sorgen die Vorhänge, mit denen die Räume in Lernzonen und Rückzugsorte unterteilt werden können. Die Anordnung in überschaubare Einheiten ist Teil des pädagogischen Konzepts, da sie die Orientierungs- und Identifikationsmöglichkeiten erhöhen. Gleichzeitig fördern Cluster die Gemeinschaft und die Eigenverantwortung der Schülerinnen und Schüler.
Ausgezeichnet
Im Februar 2023 wurden die Bauarbeiten abgeschlossen, der reguläre Schulbetrieb konnte wieder aufgenommen werden. Das Resultat begeistert nicht nur Auftraggeber, Lehrpersonen und die Schülerinnen und Schüler, sondern auch die Jury des Architekturpreises «Ausgezeichnete Architektur in Hessen»: Sie hat der Wilhelm-Arnoul-Schule die Joseph-Maria-Olbrich-Plakette verliehen.
opus Architekten BDA / DE
Fast + Epp GmbH / DE
Ochs GmbH / DE
Fotos: Eibe Sönnecken












Kommentare
Keine Kommentare