Schützende Decken für die Pioniere von morgen
Aus dem Wettbewerb für den Bau des viergruppigen Kindergartens in Waldstetten ging das Architekturbüro Klaiber + Oettle aus Schwäbisch Gmünd als Sieger hervor. Der Entwurf der Kindertagesstätte folgte der Idee von Einfachheit und Klarheit. Das zeigt sich zum einen in der Grundrissplanung, zum anderen in der Konstruktion. Besonders wichtig waren dem Betreiber kurze Wege und gut ablesbare Strukturen.
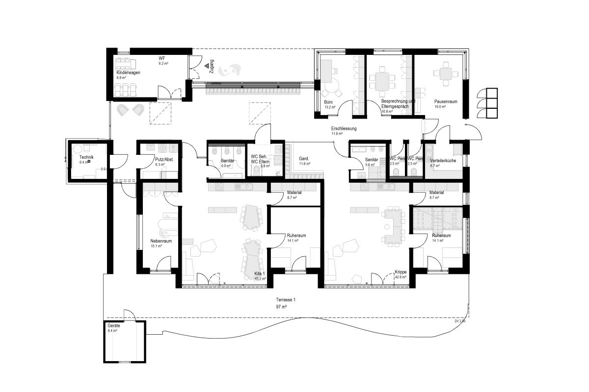
Das eingeschossige, nicht unterkellerte Gebäude gliedert sich in eine Stahlbetonbodenplatte, tragende Aussenwände und ein Holzdach mit Dachbegrünung. Erschlossen wird das etwa 25,50 m lange und knapp 17 m breite Gebäude von Nordwesten.
Berg-Wichtel
Neben dem offenen Erschliessungs- und Kommunikationsbereich orientieren sich auch die Büroräume, der Pausenraum bzw. die Räume für Elterngespräche zu dieser Seite. Die Gruppenräume für Krippe und Kindergarten dagegen öffnen sich zum Garten- und Spielbereich im Südosten, geschützt durch ein auskragendes Holzdach aus LIGNATUR-Elementen. In der Mitte des Gebäudes liegen zusammengefasst Sanitärräume und eine Zubereitungsküche. Ins Auge fällt zudem das ansprechende Wechselspiel aus verputzten, teils weissen, teils farbigen Fassadenflächen und aus mit Holzschindeln bekleideten Fassadenbereichen.
Materialvielfalt
Das 4,10 m hohe Gebäude ruht auf einer 30 cm dicken Stahlbeton-Bodenplatte mit Streifenfundamenten. Auf diese Bodenplatte wurden die tragenden monolithischen Aussenwände aus Dämmziegeln gemauert. Das bis zu 3 m weit auskragende Dach bilden vorgefertigte LIGNATUR-Elemente mit 24 cm Bauteilhöhe (LFE 240), die über die verspringende Aussenwand mal mehr, mal weniger weit über diese hinaus ragen. Die ein Meter breiten und bis zu 9,60 m langen Hohlkasten-Elemente sind auf Holzschwellen verschraubt, diese wiederum auf einem Stahlbetonringanker fixiert, der auf den tragenden Wänden aufgebracht ist. Im auskragenden Bereich wurden die Elemente mit dem Schwellholz luftdicht abgedichtet. Die Federn sind im Bereich der Aussenwand unterbrochen und die Elementfugen mit einem vertikalen, elastischen Luftdichtungsband geschlossen Die im auskragenden Bereich in die Hohlkästen eingebaute Holzfaserdämmung stellt dabei den erforderlichen Wärmeschutz sicher.
Helles Raumambiente
Die LIGNATUR-Elemente tragen das Gründach mit einer Aufbauhöhe von teilweise 43 cm bei einer Spannweite von bis zu 7,30 m. Oberhalb des Eingangs- und Kommunikationsbereichs erhielt das Gründach noch zwei 1,5 m x 1,5 m grosse Oberlichter, die für eine angenehme Ausleuchtung des Raumes sorgen. Mit einer unterseitigen Lochung des Akustik Typ 3 dynamisch Design erreichen die LIGNATUR-Elemente zudem eine optimale Raumakustik. Die Decke erfüllt darüber hinaus die Brandschutzanforderung REI 30. Und zu guter Letzt ermöglichte der Einsatz von Stahlstützen und -Trägern die grossen, raumhohen Fensteröffnungen zur Gartenseite.
Auf der grünen Seite
Bodenplatte, Wände und das LIGNATUR-Dach weisen einen hohen Dämmstandard auf. In Kombination mit einer Photovoltaik-Anlage auf dem Dach und dezentralen Lüftungstruhen mit Wärmerückgewinnung ließ sich der Energiebedarf des Gebäudes stark reduzieren. Aber nicht nur der Energieeffizienz, sondern auch der Wohngesundheit schenkten die Architekten grosse Aufmerksamkeit. Daher sind ausschliesslich durch das Sentinel Haus Institut geprüfte und freigegebene, schadstoffarme Produkte, wie eben die LIGNATUR-Hohlkasten-Elemente, verbaut worden. In Sachen Ökologie und Nachhaltigkeit liegen Planende mit der Wahl von LIGNATUR-Elementen immer auf der grünen Seite bei ihren Bauvorhaben.
Danke an alle Projektbeteiligte für das Vertrauen und die angenehme Zusammenarbeit.
Klaiber+Oettle Architekten und Ingenieure, Schwäbisch Gmünd / DE
Ohligschläger & Roll Beratende Ingenieure, Aalen / DE
Zimmerei Frey, Heubach / DE
Fotos: Conné van d’Grachten
Text: Susanne Jacob-Freitag











Kommentare
Keine Kommentare